20082 | Nový rodinný dům 5+1 ve Vysokém Újezdě

U Křížku, 26716, Vysoký Újezd   mapa

17 990 000 Kč

Moderní nízkoenergetický rodinný dům 5+1 s pozemkem 820 m and sup2;, Vysoký Újezd

Nabízíme k prodeji nově zkolaudovaný, nízkoenergetický rodinný dům v klidné okrajové části obce Vysoký Újezd. Nemovitost spojuje výbornou dostupnost do Prahy s komfortem moderního rodinného bydlení v blízkosti přírody.
Dům o dispozici 5+1 disponuje podlahovou plochou 160,2 m and sup2;, terasami a balkony o celkové výměře 28,4 m and sup2; a stojí na pozemku o velikosti 820 m and sup2;. Jedná se o kvalitní dřevostavbu z panelů RD Rýmařov se zárukou 30 let. Energetická náročnost třídy A zajišťuje velmi úsporný provoz.
Interiér domu je navržen s důrazem na prostor, světlo a propojení se zahradou. Velkoformátová okna přivádějí do domu dostatek denního světla a vytvářejí příjemnou atmosféru. Dům je připravený k okamžitému nastěhování.

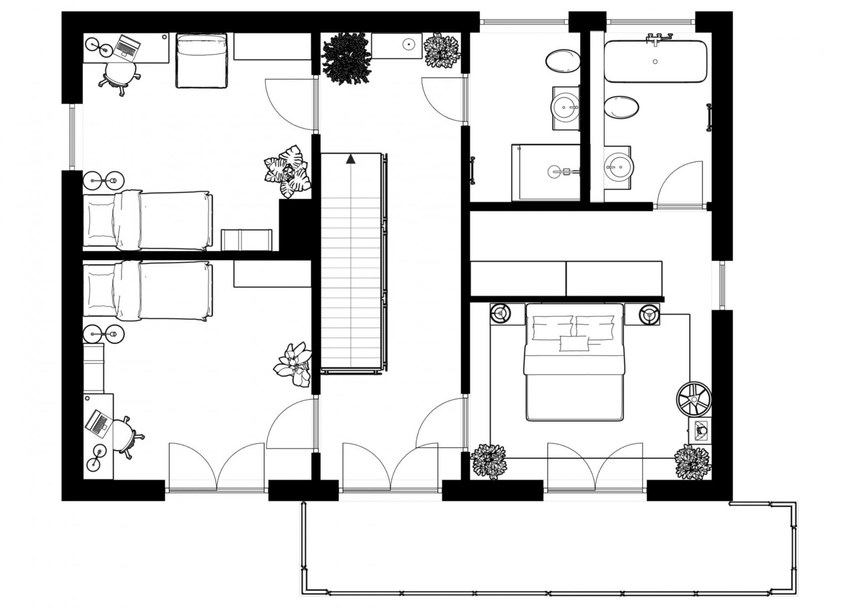
Dispozice
Přízemí:
prostorný obývací pokoj propojený s jídelnou a kuchyní se vstupem na terasu a zahradu
samostatný pokoj (pracovna / pokoj pro hosty)
koupelna s toaletou
technická místnost
vstupní chodba
1. patro:
dva dětské pokoje se společnou koupelnou
prostorná chodba
samostatná hlavní ložnice se šatnou, vlastní koupelnou a vstupem na balkon
z 1. patra je po výsuvném schodišti vstup do půdního prostoru

Technické řešení domu zahrnuje teplovodní podlahové vytápění s tepelným čerpadlem a akumulační nádrží, solární panely 2,5 kWp pro ohřev vody, předokenní elektrické žaluzie a optický internet. Vytápění má ekvitermní regulaci, dle PENB splňuje klasifikační třídu A. Napojení na obecní vodovod a kanalizaci je samozřejmostí.
Na pozemku je k dispozici parkování pro tři vozy.

Standardní vybavení zahrnuje:
Vinylové podlahy a dlažby, okna s trojskly, kvalitní interiérové dveře, designové schodiště s dřevěnými nášlapy, kompletní sanitu, regulaci vytápění, oplocení, vsakovací nádrž na dešťovou vodu, videotelefon a elektrickou vjezdovou bránu.

Lokalita:
Vysoký Újezd patří mezi velmi žádané rezidenční oblasti západně od Prahy. Díky dálnici D5 se na metro B Zličín autem dostanete přibližně za 15 minut. K dispozici je i veřejná doprava, autobusem to na metro trvá 28 minut. V obci je kompletní občanská vybavenost včetně školy, školky, pošty, obchodů a restaurací. Místní zážitková restaurace Papilio je držitelem dvou michelinských hvězd.
Okolí nabízí široké možnosti pro volnočasové aktivity blízkost Českého krasu, cyklostezky, legendární lom Amerika, turistika i prestižní golfové hřiště Albatros Golf Resort.
________________________________________
Hledáte moderní rodinné bydlení v klidné lokalitě s rychlou dostupností do Prahy? Tato nabídka je ideální volbou.
V případě zájmu nás neváhejte kontaktovat. Rádi Vám zajistíme osobní prohlídku i kompletní hypoteční a právní servis.

Poloha objektu samostatný
Druh objektu dřevěná
Stav objektu novostavba
Počet podlaží v objektu 1
Typ domu přízemní
Zastavěná plocha 128 m2
Užitná plocha 160.2 m2
Plocha parcely 820 m2
Umístění objektu okraj obce
Doprava dálnice; silnice; MHD; autobus
Elektřina Elektro - 230 V; Elektro - 400 V
Voda Místní zdroj vody
Telekomunikace Internet
Topení Jiné
Odpad Kanalizace
Ostatní rozvody Kabelová televize
Energetická náročnost budovy A - Mimořádně úsporná
Ukazatel energetické náročnosti budovy 48 kWh/m²
Plocha terasy 12 m2
Plocha balkónu 12 m2

Prodávající makléř

Pronájem krásného bytu o velikosti 110 m2 s terasou, velkou zahradou a garáží v blízkosti metra. Nabízíme k pronájmu krásný byt v ulici U Nikolajky. Byt má velkou vstupní halu. Pronajímá se zařízený značkovým nábytkem. V kuchyně naleznete kuchyňskou linku Sýkora s kvalitními spotřebiči značky Miele a Kuppersbusch. Obývací pokoj je zařízen Natuzzi sedačkou. Nadstandartně velká ložnice, kde je krom postele velká šatní skříň a spousta úložného prostoru. Další menší ložnice má vestavěnou skříň. Z obývacího pokoje je výstup na zahradu, která skýtá prostor pro příjemné posezení. Zahrada je dostatečně velká pro trampolínu i nadzemní bazén. Koupelna disponuje sprchovým koutem i vanou. V bytě jsou dvě WC, jedno v koupelně, další samostatně. Jednotlivé pokoje jsou neprůchozí. Podlahy jsou kryty parketami. Byt má videotelefon. Vjezd do garáže je na dálkové ovládání. Výhodou je velmi klidná lokalita, v blízkosti parku a dochozí vzdálenosti na metro, zdravotnické středisko a nákupní centrum Nový Smíchov.

Ing. Jaroslav Laur, MBA

Telefon: +420 602 615 065
E-mail: jaroslav.laur@qara.cz

Kontaktní formulář